STUDIO

399sf

Styles: Ranch, Spanish, & Traditional


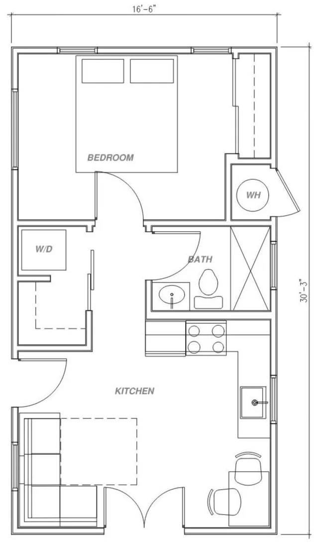
1 Bedroom

499sf

Styles: Ranch, Spanish, & Traditional


1 Bedroom Contemporary

625sf


2 Bedroom

750sf

Styles: Ranch, Spanish, & Traditional

This floor plan has the option to convert the 1 large bath into 2 baths.


2 Bedroom Contemporary

749sf


3 Bedroom

997sf

Styles: Ranch, Spanish, & Traditional

This three bedroom floor plan has the option to remove a bedroom to enlarge the living area.